Arredi dwg >
Verde e Giardini
Particolari costruttivi >
 
Indice Richard Meier >  
Indice architetture famose >
Indice dwg >  
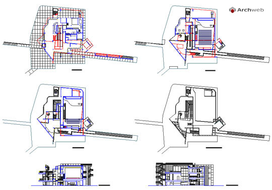
Richard Meier - Atheneum
New Harmony, Indiana, USA; 1975-79
L'immagine di questa pagina deriva direttamente dal nostro disegno dwg, rappresenta cioè esattamente il contenuto del file dwg. Disegni in scala 1:100. Click sull'immagine per avere l'anteprima più definita.
Fotografie / Maps Anteprima AutoCAD Atheneum 3D
 
Sono presenti nella nostra banca dati  file dwg di qualsiasi genere, dalla tipologia edilizia, al dettaglio architettonico.  Informazioni per avere l'intera banca dati dwg 2D/3D  >>
architetture I archivi I blog architettura I tecnologie I eventi I  textures
 tesi di laurea I utilità disegno I geometrie I dwg
Copyright © Archweb.it  Tutti i diritti riservati - Contatti - disclaimer  - Facebook - Pubblicità
H O M E