Indice Rem Koolhaas >
Indice architetture famose >
Indice dwg >

 

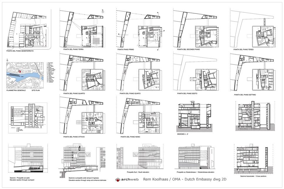
Rem Koolhaas / OMA - Dutch Embassy dwg 2D  
L'immagine di questa pagina deriva direttamente dal nostro disegno dwg (click to enlarge)
 

Copyright © Archweb.it  Tutti i diritti riservati - disclaimer  - Facebook - Pubblicità
H O M E